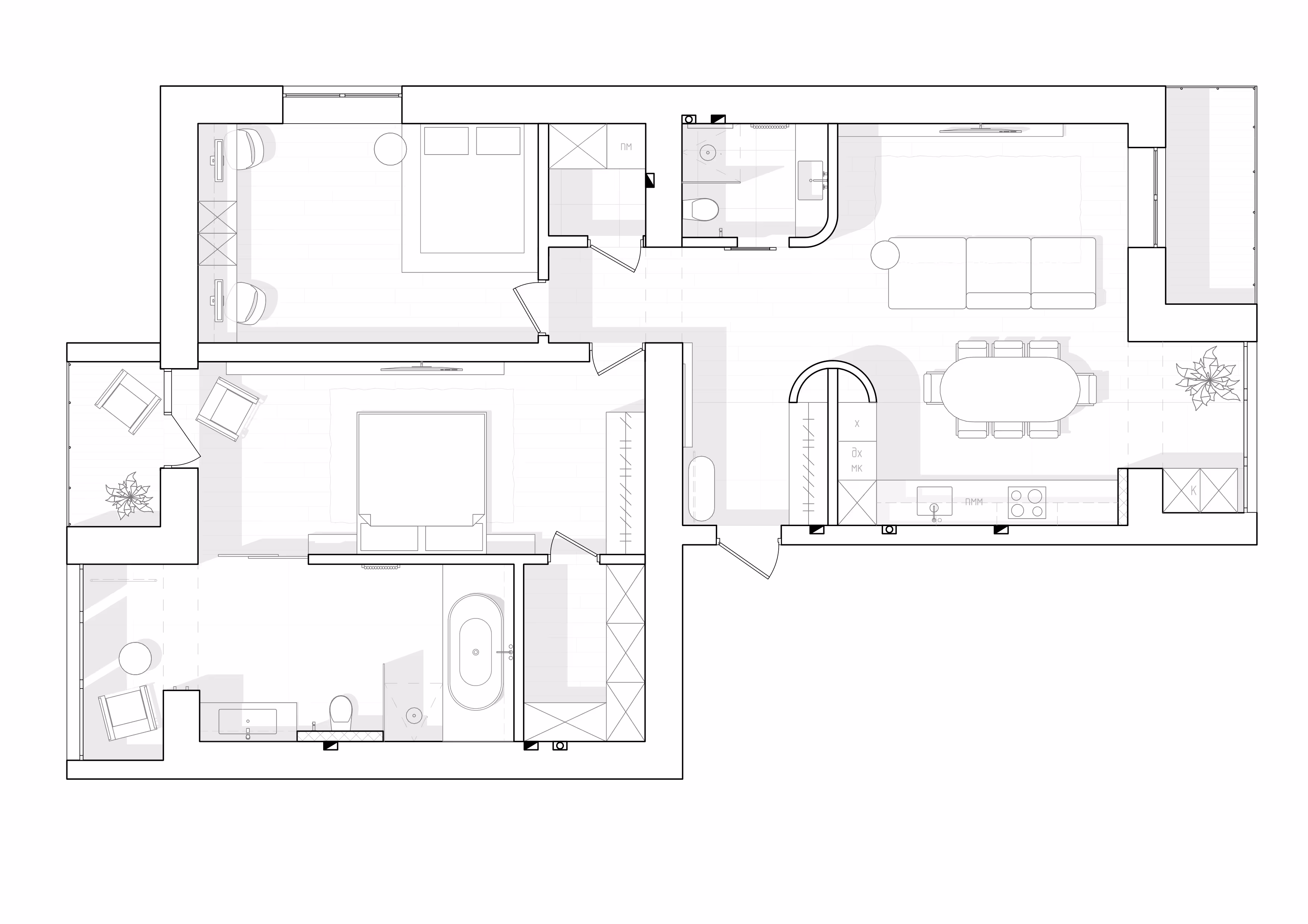
This apartment is located in Ivano-Frankivsk, with a total area of 113 square meters. The original area was 58 square meters, which more than doubled after the owners bought a next-door apartment.
The design of the apartment was simple and thought-through, featuring various natural materials, such as wood to add more comfort and a feeling of coziness.
The flat can be divided into two parts: a left wing and a right wing. The private zone of the apartment owners takes most of the area of the left wing, alongside an office, which also works as a guest bedroom.
A kitchen, living room and a guest bathroom are located in the right wing of the apartment. There is a small seating area in the master bathroom by the panoramic window overlooking the city.